その他
注目物件
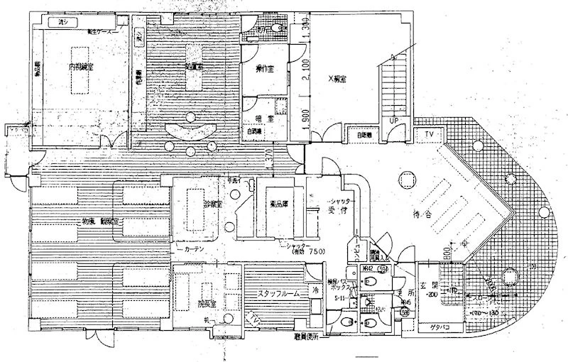
菊池市泗水町吉富 自宅付医院用地
物件価格
7,500 万 円
頭金/ボーナス払い0円
頭金0円
月々のお支払い例(初回お支払額):
{{ monthlyPayment?.toLocaleString() }}円
※上記支払例の借入条件:金利{{ loanInterestRate }}%、借入総額7,500万円(うちボーナス払い{{ loanBonusMan }}{{ loanBonusUnit }}円)、借入期間{{ loanTerm }}年、{{ loanPaymentMethodName }}返済方式、ボーナス支払額(初回){{ bonusPayment?.toLocaleString() }}円
支払いシミュレーション
- 万円
- 万円
- %
- 万円
| ボーナス払い | {{ loanTerm }}年 |
|---|---|
| 0万円 | |
| 5万円 | |
| 10万円 | |
| 15万円 | |
| 20万円 | |
| 25万円 | |
| 30万円 | |
| 35万円 | |
| 40万円 | |
| 45万円 | |
| 50万円 |
× 閉じる
セールスポイント
【事業用・開業用地】病院(RC造)と自宅(4LDK)がセットになった希少物件。約417坪の広大な敷地は駐車場も完備しており、クリニックの継承・新規開業はもちろん、介護施設や事務所への転用にも最適です!
所在地・交通
| 所在地 | 熊本県菊池市泗水町吉富3169 | ||
|---|---|---|---|
| 交通 |
バス停 「伝承館前(熊本県)」 徒歩3分 |
その他交通 | |
| 小学校校区 |
菊池市立泗水小学校 |
中学校校区 |
菊池市立泗水中学校 |
※学校区は住所から自動判定したものであり、保証できる情報ではございません。正確な学校区はお問い合わせ下さい。
「人型アイコン」を地図上にドラッグすることで『Google ストリートビュー』に切り替わります。
※地図上の「対象地」は実際の場所ではない場合がございます。詳しくはお問い合わせください。
物件概要
| 価格 |
7,500万
円
|
利回り | |||
|---|---|---|---|---|---|
| 種別 | 住宅以外の建物全部 | 種目 | その他 | ||
| 土地面積 | 1379.59㎡(公簿) | 私道面積 | |||
| 建物面積 | 建物構造規模 |
その他 |
|||
| 築年月(竣工月) | 駐車場 | ||||
| 総戸数 | |||||
| 管理形態/管理方式 | |||||
| 接道状況 | |||||
| 地目 | 雑種地 | ||||
| 建ぺい率/容積率 | 70% / 200% | 都市計画 | 非線引区域 | ||
| 土地権利 | 所有権 | 地勢 | その他 | ||
| 用途地域 | 無指定 | 国土法 | |||
| 現況 | |||||
| 建築確認番号 | |||||
取引条件等
| 引渡し | 相談 |
|---|
その他
| 設備 | |||
|---|---|---|---|
| 特徴 | |||
| 諸条件・相談 | |||
| 情報登録日 | 2025年12月25日 | 情報更新予定日 | 2026年4月17日 |